PROJECTS
PROFILE
CONTACT
COMMERCIAL
RESIDENTIAL
INTERIOR
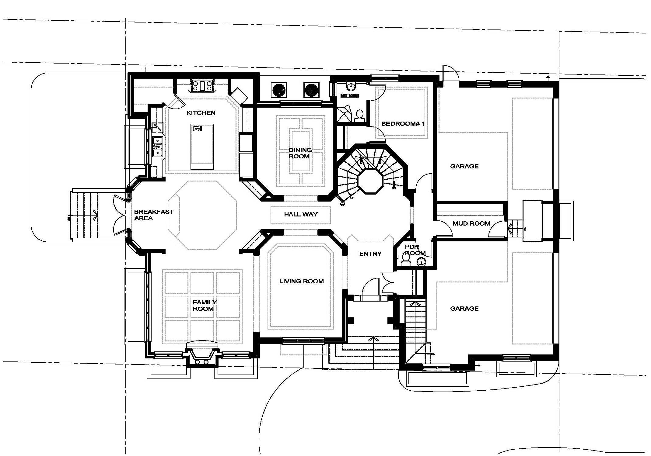
West Suburb Residence
INFORMATION
DRAWINGS
All content © 2010, A B Architecture, P.C.
site design by
AP